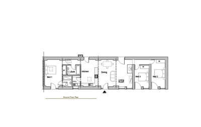
Plot 5

A spacious single storey end barn conversion.

Floor plan

All dimensions are approximate, layouts and specifications are subject to change.

Plot Details
3
2
1
  • Open plan living / dining / kitchen
  • Utility room
  • Large garden

TAKE A LOOK AT OTHER PLOTS...